Publicerad 2026-04-02
Byggbeskrivning Växthuset visar på ett växthus att odla växter i, antingen det är för trevnad eller för praktisk nytta. Det är en plats att träffas på och umgås i samtidigt som det utgör en plats att söka sig till för lugn och kanske kontemplation. Det är en plats där man får ägna omsorg om de växter man planterat och vill se frodas och kanske föröka sig, en plats där växter får inta si vintervila, en plats där växter kan skötas och där redskap för skötsel kan förvaras.
Växthuset är 15 m2 och tänkt att kunna användas året om. Det består av en glasad växthusdel och en värmeisolerad förrådsdel. Växthusdelen som utgör två tredjedelar av växthuset utgör utrymme för plantering och odling samt för att umgås. Den värmeisolerade delen utgör dels förråd, dels plats för vintervila för de växter som ska återplanteras.
Växthuset innehåller en markbädd, en upphöjd bädd och bord samt bänkar för skötsel och även avkoppling. Markbädden är av sådant slag att även större växter och mindre träd ska trivas. Där finns hål i grunden så att rötterna ska kunna finna väg ut mot marken utanför växthuset. Den upphöjda bädden är också av en storlek och djup så att växter ska trivas under den varmare årstiden, från vår till sen höst.
Växthuset har en stomme av kvadratiska impregnerade limträpelare 115 × 115 i hållfasthetsklass GL24h och träskyddsklass NTR BGL och hammarband samt takbjälkar. Takbjälkarna vilar mot en nockbalk av impregnerad limträbalk 115 × 315 i hållfasthetsklass GL30c och i träskyddsklass NTR BGL. Mellan limträpelarna står impregnerade väggreglar av konstruktionsvirke i hållfasthetsklass C24 och i träskyddsklass NTR AB. Mellan takbjälkarna ligger impregnerade takreglar av konstruktionsvirke i hållfasthetsklass C24 och i träskyddsklass NTR AB. Växthusdelen är täckt med glasrutor av 4 mm säkerhetsglas. Förrådsdelen, som är värmeisolerad, har väggar med liggande limträpanel 25 × 225, av gran, sort G4-1 och täcks av ett faltak av impregnerat trä 22 × 145, sort G4-2 och i träskyddsklass NTR AB.
Golvet i byggnaden är ett uppreglat golv av impregnerad trall 34 × 145, sort G4-2 och i träskyddsklass NTR AB, på ett lager av tvättad makadam 16/32.



Illustrationerna är inte skalenliga.
Alla mått är i mm där inget annat anges.
Det är tillåtet att bygga en eller flera komplementbyggnader med en sammanlagd byggnadsyta – den yta som avgränsas av väggarnas utsidor – på 45 m2 (utom detaljplan 65 m2) och med en nockhöjd som är högst 4,0 meter (utom detaljplan 4,5 m), utan bygglov. Rådgör ändå med Byggnadsnämnden då det kan finnas särskilda regler i en del kommuner.
Byggnadsnämnden kan lämna värdefulla råd och synpunkter på tekniska detaljer som grundläggningsdjup och utseendefrågor. Till det senare hör till exempel byggnadstradition och färgsättning. Om växthuset ska stå närmare tomtgräns än 4,5 meter fordras att berörd granne ger sitt skriftliga medgivande. Strandskyddsregler gäller även för bygglovsfria komplementbyggnader.
Läs mer i byggbeskrivning Bygglov och anmälan.
Grunden till växthuset består av en armerad betongsula 200 × 300 1 på vilken står en yttermur av lättklinkerblock i dimension 150 × 190 × 590 4. Grunden är en av byggets viktigaste delar och mycket stor omsorg ska ägnas åt grundläggning och mått mellan grundens olika delar samt höjder.
Grundläggningsdjupet beror bland annat på markens beskaffenhet. Om marken är tjälfarlig krävs grundläggning till frostfritt djup.
Byggnadsnämnden i kommunen kan informera om frostfritt djup i det område där växthuset planeras att uppföras. De olika momenten i bygget av växthuset anges i byggbeskrivningen i den ordning de bör monteras. De flesta arbetena kan utföras av en person. Nockbalken av impregnerad limträbalk 115 × 315 28 i hållfasthetsklass GL30c och i träskyddsklass NTR BGL, däremot, som väger cirka 120 kg, bör dock läggas på plats av tre till fyra personer för att garantera stabiliteten i stommen under monteringen samt för att öka säkerheten för personerna.
Takkonstruktionen i såväl växthusdelen som förrådsdelen är dimensionerad för en snölast i snözon 3,5. Det är viktigt att notera, att när man bygger i trä ska konstruktion och byggmaterial skyddas från fukt. Se till att virket inte ligger direkt mot marken, minst 300 över mark eller golv och att det inte utsätts för direkt sol, nederbörd, smuts eller markfukt. Lägg allt virke på pallar eller bockar och täck med presenning. Låt inte presenningen gå ända ner till marken. Säkerställ att virket luftas ordentligt. Impregnerat virke får inte skyddas av presenning. Skydda impregnerat virke med topptäckning för att få en utjämning av fuktkvoten i virkespaketet beroende på utomhusklimatet.
Byggnadens stomme består av impregnerat trä. Limträ i pelare, takbjälkar, hammarband och nockbalk är impregnerade i likhet med syll, väggreglar, takreglar, golvreglar och golv. Stommen står på en syll av impregnerat trä. Under syllen mot lättklinkerblocken ska en remsa av syllisolering placeras.
Observera
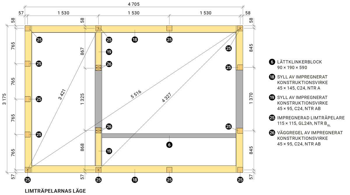
Mellan trä och betong ska alltid syllisolering användas samt mellan pelare och syll, mellan takbjälkar och hammarband, mellan väggreglar och syll samt mellan takreglar och hammarband. Centrumavståndet mellan limträpelarna på byggnadens långsidor är 1 530. Trallen vilar på impregnerade golvreglar som ligger på underslag, som i sin tur ligger på ett lager av tvättad makadam 16/32 10. På de impregnerade limträpelarna 115 × 115 25 längs långsidorna vilar ett hammarband av impregnerad limträbalk 115 × 115 27.
Den bärande takkonstruktionen består av en nockbalk av impregnerat limträ som i gavlarna och mellanvägg vilar på impregnerade limträpelare. Hammarbandet av impregnerat limträ bär takbjälkar av impregnerat limträ samt impregnerade takreglar i konstruktionsvirke i hållfasthetsklass C24 monterade mot mittbalkens sidor.
Där inget annat anges gäller konstruktionsvirke i lägst hållfasthetsklass C14, för impregnerade limträbalkar och limträpelare i lägst hållfasthetsklass GL24h. För spikar och beslag bör rostfritt stål användas eller material med likvärdig korrosionshärdighet.
Impregnerat trä
Välj impregnerat trä i träskyddsklass NTR A till:
Välj impregnerat trä i träskyddsklass NTR AB till:
Impregnerat limträ
Välj impregnerat limträ i träskyddsklass NTR BGL till:
Till impregnerat trä och impregnerat limträ bör rostfritt stål användas eller material med likvärdig korrosionshärdighet.
Läs mer i byggbeskrivningarna Bra att veta om impregnerat trä, Bra att veta om limträ, Bra att veta om trä samt Skruv- och spikguide.
Växthusets yttermur består av lättklinkerblock i dimension 150 × 190 × 590 4. Muren mellan växthusdel och förrådsdel består av lättklinkerblock i dimension 120 × 190 × 590 5. Muren mellan markbädden och växthuset med dess golv består av lättklinkerblock i dimension 90 × 190 × 590 6. På den sida av växthuset där markbädden placeras lämnas hål med bredden 290 och höjden 190 mellan lättklinkerblocken 150 × 190 × 590 4 i nedersta skiftet för att göra det möjligt för växterna, till exempel vinrankor, att få näring och vatten från marken runtomkring. Rötterna leds i förekommande fall in utifrån och in i markbädden.
Ytterväggarna, mellan impregnerade limträpelare i förrådsdelens gavel och på sidorna, består av inner- och ytterpanel som spikas på en konstruktion av impregnerade reglar. Ytterpanelen består av liggande limträytterpanel 25 × 225 71 av gran, sort G4-1. Innerväggarna i förrådsdelen samt på ömse sidor av väggen mellan växthusdel och förrådsdel består av liggande spontad ytterpanel 22 × 145 58 av gran, sort G4-2.
Många plantor, till exempel tomatplantor, kräver vid utplantering en jordtemperatur på minst 15 °C. Nattemperaturen får inte understiga 15 °C och dagtemperaturen får inte överstiga 25 °C för att plantorna ska växa. Idealiskt är en temperatur på 20 − 22 °C. Redan vid 30 °C påverkas växterna. Överstiger temperaturen 45 °C dör tomatplantorna. I ett varmt och tillstängt växthus frodas också mikrober och skadedjur. Detta innebär att luftväxlingen, ventilationen, av växthuset är synnerligen viktig liksom att plantorna skyddas mot direkt solstrålning.
Växthuset här har fyra fönsterluckor i tak, fyra fönsterluckor på väggarna i glasdelens långsidor samt två vädringsluckor på den täckta gaveln i förrådsdelen. När dörrarna i den glasade gaveln står öppna utgör också de vädringshjälp. Under den kalla årstiden, när växter står i förrådsdelen för övervintring under kontrollerat värmetillskott, då sker luftväxlingen mellan ut- och insida i förrådsdelen genom ventilationsgaller 117 i gavelns vädringsluckor och under det tröskellösa dörrpartiet mellan växthusdel och förrådsdel samt under det tröskellösa dörrpartiet i den glasade gavelfasaden.
Glasrutorna i vägg i växthusdelen har en luftspalt i nederkant mot skyddsplåten på lättklinkermuren. Glasrutornas insida ligger 4 mm utanför syllen 45 × 145 18, detta för att ge en ventilationsspalt samt för att förhindra att kondensvatten ska droppa ner på syllen.
I ett varmt och soligt väder är det svårt att hålla växthuset svalt med enbart ventilation. Därför behöver växterna skuggas, till exempel med täta gardiner eller ljusgenomsläpplig väv av något slag. Under vintern kan extruderade cellplastskivor, XPS, placeras mellan väggreglarna och under takreglarna, under glasskivorna, för att skydda mot kyla. Markbädden kan i botten även förses med värmekabel.


Markera byggnadens läge i förhållande till tomtgräns, närliggande byggnad, väderstreck, sol och skuggning, markbeskaffenhet med mera. Växthuset bör placeras på en plan yta och så att det smälter in i miljön. Placering i förhållande till väderstreck spelar mindre roll än hur det passar in i trädgården och att man enkelt tar sig till och från huset.

När valet av plats är gjord, montera profilställningar av provisoriska stödbrädor 22 × 120, 32, i varje hörn cirka en meter utanför murens läge, se detalj A. De används för att mäta in placeringen av muren av lättklinkerblock 150 × 190 × 590 4, dess ytterkant samt betongsulan 200 × 300 1 som muren av lättklinkerblock står på. Profilställningarna ska monteras i varje hörn av växthuset, se PROFILUPPSTÄLLNINGSPLAN.
Gräv ur för betongsula 200 × 300 1 samt underliggande dräneringslager 150 10, dräneringsrör ∅ 110 med flexböj, skarvmuff samt spolbrunn 2 samt omkringliggande lager av dränerande tvättad makadam 16/32 12, 13, 15.
Märk ut murens av lättklinkerblock 150 × 190 × 590 4 läge på marken. Kontrollera måtten genom att mäta diagonalerna. Motstående längdmått, breddmått och diagonalmått ska vara lika stora. Ta bort vegetation och matjord under huset. Spänn upp sträcksnören på profilställningarna i nivå med murens ovansida, diagonalt från ytterhörn till ytterhörn.
Gräv ur för betongsula 200 × 300 1 där muren av lättklinkerblock 150 × 190 × 590 4 ska uppföras. Avlägsna ett jordlager som är cirka 700 bredare än betongsulan. Om marken består av väldränerande material som sand och grus räcker det med ett djup på cirka 200 under betongsulan. Rulla ut fiberduk kl 2 14 i gropen om schaktbotten består av lera eller finmaterial. Vid tjälfarlig mark, exempelvis lera och matjord, måste djupet där betongsulan 1 gjuts ökas. Byggnadsnämnden i kommunen kan informera om frostfritt djup i det område där växthuset planeras att uppföras. Om växthuset ska stå med en del nära berg kan betongsulan gjutas direkt på berget över ett varmförzinkat förankringsjärn och höjden på muren anpassas till växthusets markkonstruktion i övrigt. Det är dock viktigt att där finns dränerande material under växthusets markbädd och i anslutning till densamma på växthusets utsida.
För utformning av betongsula 200 × 300 1, se PLAN BETONGSULA. Fyll gropens botten med tvättad makadam 150, 16/32 10 som packas väl. Armeringen ∅ 12, B 500 BT 3, i betongsulans botten läggs 50 från underkant av betongsulan, bockas och avslutas 50 under betongsulans ovankant. Armeringsjärnen 3 ligger så att det är 35 till yttersidorna på betongsulan. Grovbetong K40 C32/40 kan köpas färdigblandad, endast vatten behöver tillsättas.

Följ betongtillverkarens anvisningar på förpackningen. Alternativet är att använda cement CEM II, sand och ballast, med tillsättning av vatten enligt anvisningarna från cementtillverkaren. Packa betongen väl. Tryck fast armeringsjärnen ∅ 12, B 500 BT 3, i betongen. Väg av höjden på betongsulan 200 × 300 1 med vattenpass så att den håller rätt höjd över hela betongsulan. Håll betongen fuktig några dygn. Skydda mot direkt sol.
Slå ner trästolpar i marken, strax utanför murändarna, för att markera murens ytterkant samt läge för dörröppningar i gavelparti samt mellanvägg där muren är ett skift lägre (– 190) än övriga murpartier. Loda in och snedstaga stolparna. Mät ut och markera murskiftens överkant på stolparna samt dra ett sträcksnöre mellan dessa. Lättklinkerblocken muras i förband med cirka ett halvt blocks förskjutning för maximal stabilitet. Se till att mellanväggens mur samt markbäddens mur binder i yttermur respektive mellan markbäddens mur och mellanväggens mur. Detta är den murningsteknik som ger maximal bärighet i murverket och den lämpar sig därför för väggar under mark samt för andra konstruktioner utsatta för till exempel jordtryck.
Börja med sträcksnöret i överkant på det första murskiftet. Sträcksnöret flyttas sedan efterhand uppåt till nästa murskift. I varje murskift med lättklinkerblock 150 × 190 × 590 4 ska bistålsarmering av rostfritt stål BI 37 RF, korrosionsskydd R3 8, läggas in i ovankant i lättklinkerblockens spår. Vid uppförande av murarna under mellanvägg samt muren för markbädden, ska murarna muras i skift så att de binder till den omgivande 150 breda yttermuren. Följ anvisningarna från tillverkaren av lättklinkerblocken. Kontrollera även diagonalerna så att murens översta skift stämmer med måtten i PLAN GRUNDMUR.
Återfyll sedan med tvättad makadam 390, 16/32 13, se detalj B. På växthusets insida, fyll upp med tvättad makadam 440, 16/32 12. På detta lager läggs fiberduk kl 2 14. Längs grundens yttersidor, 175 under marknivå, läggs markisoleringsskiva av extruderad cellplast XPS i skivor i tjocklek 50 11, bredd 600 och längd 1 200. Återfyll med dränerande återfyllning av finkornig jord, 175−225 15. eller med jord av samma beskaffenhet som i övrigt omger växthuset.
Se till att det finns jordmån på växthusets sidor utanför markbädden så att rötterna från markbädden kan finna näring i omgivande mark. Se avsnitt 20: Markbädd och planteringslåda.



Putsning av muren: Applicera ett cementbruk 10–12, 100/300 7 som grundputs i ett 3 mm skikt. Låt härda under eftervattning minst ett dygn. Putsa sedan alla ytor med cementbruk 7. Den totala putstjockleken blir cirka 10–12. Skydda sedan putsytans ovansida med fotplåt 150/50 16. som monteras på murens ovankant i växthusdelen. Under syllen av impregnerat konstruktionsvirke 45 × 145, C24, NTR A 18 ligger syllisolering bredd 150 17. Se detalj D.
Golvet i växthuset utgörs av impregnerad trall 34 × 145 22, sort G4-2 i träskyddsklass NTR AB.
Kontrollera med ett vattenpass på ovankant av muren av lättklinkerblock, att den ligger i våg. Lägg syllisolering bredd 150 i kvalitet YEP 2500 17 på yttermuren, skär till 120 respektive 90 och lägg på de övriga murpartierna. Förbered montering av syllen av impregnerat konstruktionsvirke, 45 × 145 18, i hållfasthetsklass C24 och i träskyddsklass NTR A, respektive av konstruktionsvirke, 45 × 95 19, i hållfasthetsklass C24 och i träskyddsklass NTR AB. Syllen skruvas i lättklinkerblocken med fasadplugg 20 ∅ 10 × 135, varmförzinkad, centrumavstånd 1 200.
Inför monteringen av de impregnerade limträpelarna 115 × 115 25 i hållfasthetsklass GL24h och i träskyddsklass NTR BGL, mät in avståndet mellan centrum på långsidornas limträpelare = 1 530, centrum på pelaren i den täckta gaveln samt centrum på den glasade gaveln för nockbalken av impregnerad limträbalk 115 × 315 28 i hållfasthetsklass GL30c och i träskyddsklass NTR BGL. Märk därefter ut centrum för de impregnerade väggreglarna av konstruktionsvirke 45 × 70 34 i träskyddsklass NTR AB, se Limträpelares och väggreglars läge. Inmätningen av väggreglarna kräver stor noggrannhet, då de utgör stommen mot vilka väggarnas säkerhetsglas ska monteras.
Skär till bitar 115 × 115 och 45 × 95 av syllisolering bredd 150 17 och fäst dem mot underkant på impregnerade limträpelare 115 × 115 25 i hållfasthetsklass GL24h och i träskyddsklass NTR BGL och väggreglar av impregnerat konstruktionsvirke 45 × 95 26 i hållfasthetsklass C24 och i träskyddsklass NTR AB, som ska monteras mot syllen av impregnerat konstruktionsvirke 45 × 145 18 i hållfasthetsklass C24 och i träskyddsklass NTR A.
På fiberduken kl 2 14 i växthuset läggs underslag av impregnerat konstruktionsvirke 45 × 145 21 i hållfasthetsklass C24 och träskyddsklass NTR A. På underslagen spikas impregnerade golvreglar av konstruktionsvirke 45 × 95 23 i hållfasthetsklass C24 och i träskyddsklass NTR AB med rostfri trådspik 4,0 × 125 149, 2 stycken skråspikas per infästningspunkt.
Golvreglarna av impregnerat konstruktionsvirke 45 × 95 23 i hållfasthetsklass C24 och i träskyddsklass NTR AB skråspikas till underslag av impregnerat konstruktionsvirke C24 NTR A 45 × 145 21 i hållfasthetsklass C24 och i träskyddsklass NTR A med rostfri trådspik 4,0 × 125 149, 2 stycken skråspikas per infästningspunkt.
Kantbräda av impregnerad trall 34 × 145 24, sort G4-2 och i träskyddsklass NTR AB, monteras i muren av lättklinkerblock med 2 stycken fasadplugg 171 ∅ 10 × 100 i korrosivitetsklass C4, 30 från kant, centrumavstånd 500. På kantbrädorna 24 som är monterade på gavlarnas murar skruvas golvreglar 23 med 2 stycken trallskruv 174 ∅ 4,8 × 78, rostfri A4, 30 från kant, centrumavstånd 500.




Växthusets golv görs av impregnerad trall 34 × 145 22, sort G4-2 i träskyddsklass NTR AB. Montera trallen med kant-till-kant-avstånd 152, se detalj E, när trallen spikas eller skruvas fast. Använd trallskruv 174, i rostfritt stål A4 med en ytterdiameter av minst 4,2 med längd 75 eller kamspik 139, med tvärmått minst 2,8 med längd 75.
Skydda golvet med hårdträfiberskiva tjocklek 4 125. Golvet läggs innan stommen monteras, detta för att öka arbetssäkerheten.
Infästning och kant-till-kant-avstånd
Trallbrädor 22 ska ha dubbel infästning och avståndet mellan infästning och kant ska vara 30. Trallbrädor 22 ska monteras med 6 bredd på rörelsefog mot kantbrädor 24.
Trallskruv eller kamspik monteras in vinkelrätt mot trallens översida, på ett sådant sätt att skruvhuvuden och spikskallar kommer i nivå med trallens översida, inte djupare. Detta för att undvika fuktinträngning och framtida missfärgning, se detalj F. Eventuella utstickande skruvhuvuden respektive spikskallar drivs i efterhand in manuellt tills de är i exakt nivå med träytan. Ibland kan någon enstaka trallskruv eller kamspik behöva efterdras respektive slås i när det gått en tid och trallen har kommit i jämviktsfuktläge.
Vid maskinspikning ska arbetsstycket ställas in efter minsta förekommande densitet hos aktuell trall. Efter maskinspikning ska eventuella uppstickande spikskallar slås ner manuellt.


Stumskarv
Planera läggningen av trallen och välj längder som minimerar antalet skarvar. På större ytor är det oundvikligt med skarvar. Skarvarna ska utföras stumt över stöd enligt detalj G. Vid skarv monteras påsalning med 45 × 70 spikreglar på vardera sidan om golvbjälken för att få maximal infästning. Hål förborras för trallskruv respektive kamspik i trallens ändar för att undvika sprickbildning och fula skarvar. Välj träborrsdiameter ∅ 3,0 – 3,5 till trallskruv och träborrsdiameter ∅ 2,5 till kamspik.
Ändträytor vid tillkapade stumskarvar och ändar ska behandlas med penetrerande grundolja i samband med montering för att motverka fuktrörelser, deformation, sprickbildning och rötangrepp.
Oundvikliga skarvar i intilliggande trallbrädor ska förskjutas minst 1 200 och de ska fördelas jämnt över hela trädäcket. Skarvar och anslutningar ska passas. Skarvslutsbrädor ska ha en minsta längd på 2 meter.
Fuktskydd av trallgolv
Översidan av bjälklagskonstruktionen fuktskyddas genom att lägga ut längsgående remsor av syllisolering bredd 150 17, så att syllisoleringen går förbi golvbjälkarnas eller golvreglarnas överkant med några centimeter. Syllisoleringen viks ner längs överkanterna så att vatten lättare kan rinna av, se detalj E F G H. För att dölja ändträytor på trädäckets kortsida vid den glasade gaveln monteras en tvärgående trallbräda, så kallad fris. Extra stöd finns i den underliggande konstruktionen, spikreglar innanför yttre golvbjälke respektive kantbalk.

Anslutningar och skarvar passas noga för att få stumma och snygga fogar.
Fogsprång, det vill säga skillnad i höjd mellan trallbrädor i en färdig trallbeläggning, bör inte överstiga 3. Se detalj H.

Välj rätt trallskruv eller kamspik
Trallbrädor monteras med trallskruv av rostfritt stål av kvalitet A4 eller av härdat stål med korrosionsskydd motsvarande korrosivitetsklass C4.
Kamspik kan monteras som alternativ till trallskruv. Spik ska vara kamgängad, så kallad kamspik och den ska vara av rostfritt stål kvalitet A4 alternativt av härdat stål med korrosionsskydd motsvarande korrosivitetsklass C4.
Lämplig dimension på trallskruv till trallbrädor 34 × 145 är längd 75 och diameter minst 4,2 174, alternativt kamspik med längd 75 139 och tvärmått minst 2,8.

Välj rätt sida på trallbrädan
Trallbrädor ska i första hand monteras med bästa sidan vänd uppåt. Om möjligt ska kärnsidan då trallbrädans ovansida, efter en tid, kan anta en något konvex form, vilket underlättar vattenavrinning. Se detalj I. Eftersom den impregnerade splintveden som innehåller mer träskyddsmedel, då är nedåtvänd, erhålls ett effektivt skydd mot fukt underifrån.
Innan monteringen påbörjas, se till att alla trallbrädorna är fria från lös smuts och mikrobiell påväxt eller annan missfärgning.
Ytbehandling av trall: Ytbehandling med till exempel alkydoljefärg eller färglös, alternativt pigmenterad, träskyddsolja skyddar trallens yta och motverkar att små sprickor uppstår. Pigmenterad träolja ska användas på bland annat brun färgad trall för att motverka träets naturliga kulörförändring och ger därmed på sikt något mindre kulör förändringar jämfört med en färglös träolja.
Underhåll med färglös eller pigmenterad träolja bör vid behov upprepas.

Observera
Måla inte på fuktigt trä. Fuktkvoten (= kvot av vattnets vikt och träets torrvikt) ska inte överstiga 16 % – gäller även för impregnerat trä. Träets ytfuktkvot kontrolleras med en elektrisk fuktkvotsmätare.
Se även byggbeskrivning Montering av trall.
De impregnerade limträpelarna 115 × 115 25 i hållfasthetsklass GL24h och i träskyddsklass NTR BGL monteras. Börja med de yttre limträpelarna. Stötta dessa med diagonalställda provisoriska stödbrädor 22 × 120 32 i fyra riktningar, se RESANDE AV STOMME MED LIMTRÄPELARE. En provisorisk vertikal stödbräda 32 skruvas på yttersidan av limträpelarna, detta för att justera stolpraden i djupled inför monteringen av hammarbandet av impregnerade limträpelare 115 × 115 27 i hållfasthetsklass GL24h och i träskyddsklass NTR BGL. Därefter kan de inre impregnerade limträpelarna 115 × 115 25 monteras och skruvas mot stödbrädan.




Kontrollera att de provisoriska stödbrädorna 22 × 120 32 i respektive limträpelarrad ligger parallellt med varandra. Fortsätt med de längre limträpelarna 25 i förrådsdelens gavelparti. Kontrollera med vattenpass och skruva fast de provisoriska stödbrädorna 32 för att säkerställa att limträpelarna står i lod.
Montera de två hammarbanden av impregnerad limträpelare 115 × 115 27 i hållfasthetsklass GL24h och i träskyddsklass NTR BGL på limträpelarna 25 på byggnadens långsidor. Skruva med universalskruv ∅ 8 × 160 40, korrosivitetsklass C4, enligt detalj J.




Inför monteringen av byggnadens nockbalk av impregnerad limträbalk 115 × 315 28 i hållfasthetsklass GL30c och i träskyddsklass NTR BGL, montera de båda impregnerade limträpelarna 115 × 115 25 i hållfasthetsklass GL24h och i träskyddsklass NTR BGL i byggnadens glasade gavelparti samt montera takbjälke av impregnerad limträpelare 115 × 115 29 i hållfasthetsklass GL24h och i träskyddsklass NTR BGL ovanpå dessa. Mät in mittläget på nockbalken 28 och montera därefter stödet av impregnerad limträpelare 115 × 115 25 i hållfasthetsklass GL24h och i träskyddsklass NTR BGL för nockbalken 28.
Fortsätt med att montera väggreglarna av konstruktionsvirke 45 × 95 26 i hållfasthetsklass C24 och i träskyddsklass NTR AB i mellanväggen som delar växthuset i en växthusdel och en förrådsdel. Montera avväxling av impregnerad limträbalk 90 × 225 30 i hållfasthetsklass GL30c och i träskyddsklass NTR BGL ovanpå dessa. Mät in mittläget på avväxlingen 30 och montera därefter stödet av impregnerad limträpelare 90 × 90 31 i hållfasthetsklass GL24h och i träskyddsklass NTR BGL för nockbalken28 av impregnerad limträbalk 115 × 315 28 i hållfasthetsklass GL30c och i träskyddsklass NTR BGL.
Inför lyftet av nockbalken 28, markera på nockbalkens undersida var förrådssidans mittre limträpelares 31 insida kommer att placeras samt pelarstöden i mellanvägg och i det glasade gavelpartiet. Montera provisoriska stödbrädor 22 × 120 32 cirka 500 långa på ena sidan av limträpelarna 25, detta som stöd så att nockbalken kommer rätt i djupled. Bygg en ställning inför lyftet av nockbalken och se till att limträpelarna är stabiliserade så att de inte kan flyttas ur läge när nockbalken lyfts på plats.
När nockbalken 28 är på plats, kontrollera med vattenpass att den ligger i våg. Kontrollera med mallbrädor av spontad ytterpanel 22 × 115 44 att avståndet mellan nockbalkens ovankant och hammarbanden är lika stora i hela nockbalkens längdriktning. Skruva fast nockbalk 28 samt takbjälkar av impregnerade limträpelare 115 × 115 29 i hållfasthetsklass GL24h och i träskyddsklass NTR BGL med universalskruv ∅ 8 × 160 40 i korrosivitetsklass C4. Inför fastskruvningen tvinga detaljerna mot varandra. Använd med fördel slagskruvdragare under monteringen för att inte riskera att förskjuta delarna ur läge under monteringen.



Tillverka två provisoriska stödbrädor 22 × 120 32, därefter fyra med mått 22 × 115, L = 1 845 44 (ovankant) för takbjälkarna av impregnerad limträpelare 115 × 115 29 i urhaken för hammarbandet 27. Hammarbandet bär upp takbjälkarna 29 och de impregnerade takreglarna 41 och 42 som skruvas mot nockbalken av impregnerad limträbalk 115 × 315 28 i hållfasthetsklass GL30c och träskyddsklass NTR BGL.
Tillverka sedan två mallbrädor 22 × 95 43 av ytterpanelbräda 22 × 120 för takreglar 45 × 95 i växthusdel och slutligen två mallbrädor 45 22 × 120 av ytterpanelbräda 22 × 120 för takreglar 45 × 120 i förrådsdel.
Skruva tillfällig monteringsregel 47 med ovankant 34° på vardera sidan av nockbalken av impregnerad limträbalk 115 × 315 28 på lägena i underkant för takbjälkarna av impregnerad limträpelare 115 × 115 29. När monteringsregeln 47 skruvas på plats, se till att skruvarna går att lossa och monteringsregeln går att avlägsna sedan takbjälkarna 29 lagts på plats och skruvats fast. Lägg de åtta mallbrädorna 43 44 45 på plats och kontrollera att ovankant ligger i linje mellan de fyra takbjälkarna 29. Detta är ytterst viktigt, liksom att mallbrädorna ligger an mot nockbalken 28.





När detta är klart, fixera nockbalken av impregnerat limträ 115 × 315 28 med de längsgående hammarbanden 115 × 115 27 genom att provisoriskt skruva fast de åtta mallbrädorna 43 44 45. När mallbrädorna är på plats och det är kontrollerat att alla ligger i linje på båda sidor om nockbalken 115 × 315 28, skruva fast provisoriska horisontella stödbrädor 22 × 120 32 mot de impregnerade limträpelarna 115 × 115 25 för att fixera byggnadens långsidor under monteringen av takbjälkarna av impregnerat limträ 115 × 115 29 samt takreglarna 45 × 120 41 och 45 × 95 42 över växthus och förråd.
Kontrollera därefter att limträpelarna 115 × 115 25 i gavlar och mittparti passar mot de provisoriska stödbrädorna 22 × 120 32. Justera synliga limträpelare 115 × 115 25 i underkant vid behov.
Skruva sedan bort två av de mittre mallbrädorna 44 och ersätt dem med de tillsågade takbjälkarna av impregnerat limträ 115 × 115 29 i hållfasthetsklass GL24h och i träskyddsklass NTR BGL och skruva fast dessa enligt detalj K. Montera därefter en tillfällig monteringsläkt av staketläkt 28 × 45 46 mot ovankant av takbjälkarna av limträ 115 × 115 29 på var sida om nockbalken av limträ 115 × 315 28. Läkten styr läget i ovankant för takbjälkar och takreglar. Fortsätt med två av mallbrädorna vid ena gaveln, avlägsna dem och ersätt med takbjälkarna av limträ 115 × 115 29 och skruva dit dem. Fortsätt på motsvarande sätt med takbjälkarna vid den andra gaveln och slutligen med de återstående mittplacerade takbjälkarna av limträ 115 × 115 29. Avlägsna därefter den tillfälliga monteringsregeln av regel 45 × 95 47 under takbjälkarna av limträ 115 × 115 29.
Samtliga limträbalkar skruvas med universalskruv ∅ 8 × 160 40 i korrosivitetsklass C4 enligt detaljritningar K N O P Q.
Montera två mallbrädor 22 × 120 45 för de impregnerade takreglarna av konstruktionsvirke 45 × 120 41 i hållfasthetsklass C24 och i träskyddsklass NTR AB för takreglarna över förrådsdelen, samt de två mallbrädorna 22 × 95 43 för de impregnerade takreglarna i konstruktionsvirke 45 × 95 42 i hållfasthetsklass C24 och i träskyddsklass NTR AB över växthusdelen. Markera på monteringsregel 47 48 49 och på hammarband 115 × 115 27 de exakta lägena för de impregnerade takreglarna 45 × 120 41 och 45 × 95 42 i träskyddsklass NTR AB. Kontrollera tillpassningen, parvis på ömse sidor om nockbalken av limträ 115 × 315 28, att mallbrädorna passar in mot nockbalken. Därefter kan takreglarna 45 × 95 42 monteras, genom att lägga dem på hammarbandet 115 × 115 27 och sedan skjuta upp dem mot den tillfälliga monteringsläkten 46 på nockbalken 28. Skruva fast takreglarna mot nockbalken 115 × 315 28 och mot hammarbandet 115 × 115 27. Kontrollera måtten genom att mäta upp diagonaler i de fack där glasrutorna ska placeras. När samtliga takreglar är monterade och fastskruvade, montera de impregnerade limträpelarna 115 × 115 25 mot takbjälkarna115 × 115 29 i gavelpartiet. Avlägsna därefter de båda monteringsreglar 47 som takbjälkarna av impregnerat limträ 115 × 115 vilar på. Fortsätt med att montera de impregnerade takreglarna i konstruktionsvirke 45 × 95 41, respektive 45 × 120 42 i hållfasthetsklass C24 och träskyddsklass NTR AB på monteringsregel 48 49.
Montera därefter impregnerade reglar av konstruktionsvirke 45 × 120 41 i hållfasthetsklass C24 och träskyddsklass NTR AB mot takbjälkarna av impregnerat limträ 115 × 115 29 i förrådsdelen. Dessa takreglar ska den invändiga takpanelen skruvas mot.

Takregel 45 × 120 41 skruvas från sidan i 30 graders vinkel mot nockbalk 115 × 315 28 samt från sidan i 30 graders vinkel mot hammarband 27 med universalskruv ∅ 8 × 160 40 i korrosivitetsklass C4.
Takregel 45 × 95 42 skruvas från sidan i 30 graders vinkel mot nockbalk 115 × 315 28 samt från sidan i 30 graders vinkel mot hammarband 27 med universalskruv ∅ 8 × 160 40 i korrosivitetsklass C4.
Mellan takreglarna och takbjälkarna i förrådsdelen monteras kilbrädor 60 som sågas till ur impregnerad regel 45 × 95, i sort G4-2 och i träskyddsklass NTR AB, se avsnitt 13, sidan 27. Kilbrädorna tätar mellan underlagsspont 23 × 120 50 och hammarband 115 × 115 27 och skruvas i hammarbandet med träskruv ∅ 6,0 × 100 167, rostfri A4.




















Börja med att mäta in lägena för väggreglarna av konstruktionsvirke 45 × 70 34 i hållfasthetsklass C24 och i träskyddsklass NTR AB i växthusdelen. Loda från respektive inritad mätpunkt på hammarbandet av impregnerad limträpelare 115 × 115 27. Mät även diagonalerna. Montera väggreglarna med tillskuren syllisolering bredd 150 17 i kvalitet YEP 2500 på underkant av väggreglarna, mot syllen av impregnerat konstruktionsvirke, 45 × 145 18 i hållfasthetsklass C24 och i träskyddsklass NTR A. Kontrollera måttet mellan väggreglarna i växthusdelen, se limträpelares och väggreglars läge, med hjälp av mallbräda av ytterpanelbräda 22 × 120 38, L = 440, se detalj Y, sidan 40.
Skär till bitar av syllisolering bredd 150 17 och fäst dem mot underkant av de impregnerade väggreglar 34 som ska monteras mot mot syllen av impregnerat konstruktionsvirke, 45 × 145 18 i hållfasthetsklass C24 och i träskyddsklass NTR A.




Fortsätt med att montera väggreglar av impregnerat konstruktionsvirke 45 × 70 34 i hållfasthetsklass C24 och i träskyddsklass NTR AB i förrådsdelens gavel och långsidor. Diagonalerna på väggpartiet på långsidorna och gavel monteras halvt i halvt.
Montera horisontella väggreglar för fönsterluckor i växthusvägg samt förrådsvägg enligt detalj V.
Montera de vertikala väggreglarna av konstruktionsvirke 45 × 70 34 i hållfasthetsklass C24 och träskyddsklass NTR AB i gavelpartiet i växthusdelen enligt detalj V.
Se till att skydda taket mot regn, snö och väta under monteringen fram till och med läggningen av underlagspappen.
Underlagstak
Underlagstaket under faltaket består av underlagsspont 23 × 120 50 av gran, sort G4-3 som spikas med varmförzinkad trådspik 2,8 × 75 134, med 2 stycken trådspik i varje fästpunkt och med kantavstånd 30 från under- respektive överkant. Det ger ett stadigt underlag att gå på. Underlagstakets underlagsspont 23 × 120 50 får skarvas högst två i bredd över samma takregel.

Börja inbrädningen av underlagstaket. Klyv den första spontade underlagstakbrädan 23 × 120 50, så att noten avlägsnas. Vänd den rillade sidan ned (inåt förrådsdelen) och med fjädern i läggningsriktningen.
Vid takfot, montera fotplåt 69 med fotplåtsremsa bredd 330 187 i kvalitet YEP 2500 undertill. Taket förses med underlagspapp. Montera underlagspapp av kvalitet YEP 2500 med klisterkant 62 så snart som möjligt efter inbrädningen. Dolda kanter spikas med varmförzinkad pappspik 2,8 × 20 160.
Klä in nockbalken av impregnerat limträ 115 × 315 28 enligt ritning, se detalj X.





När detta är klart kan ströläkt av impregnerad staketläkt 28 × 45 51, sort G4-2 och i träskyddsklass NTR AB, och bärläkt av impregnerad staketläkt 28 × 70 52, sort G4-2 och i träskyddsklass NTR AB, monteras.
Ströläkt och bärläkt
Fästdon: Till ströläkt 28 × 45 51: trådspik 1,7 × 40 132, varmförzinkad. Till bärläkt 28 × 70 52: 2,8 × 75 134, varmförzinkad, i varje korsningspunkt, centrumavstånd 250.
Ströläkt 28 × 45 51 monteras i takets lutningsriktning med centrumavstånd enligt ritning.
Ströläkt består av impregnerad staketläkt 28 × 45 51 i sort G4-2 och i träskyddsklass NTR AB.
Bärläkt består av impregnerad staketläkt 28 × 70 52 i sort G4-2 och i träskyddsklass NTR AB. Den ska ha hel upplagskant och får inte ha försvagande kvistar. Bärläkten monteras på lågkant med centrumavstånd enligt ritning. Bärläkt skarvas på ströläkt 28 × 45 51 eller stödklots.
Faltak
Faltaket består av impregnerad ytterpanelbräda 22 × 145 53 i sort G4-2 och i träskyddsklass NTR AB. Börja med de båda ytterbrädorna i respektive takfall.
Underbrädor kan, men behöver inte, ha dräneringsspår på ovansidan. Om dräneringsspår finns på ena flatsidan monteras underbrädorna med spåren uppåt. Överbrädan monteras i regel också med eventuella dräneringsspår uppåt.

Det vanligaste är att takbrädorna spikas fast med panelspik eller skruvas med panelskruv. Vid spikning ger handspikning bästa infästning. Underbrädor fästs centriskt med en panelspik 2,8 × 48 135, rostfri A4 eller panelskruv ∅ 4,8 × 48 169 rostfri A4 i varje bärläkt 52. Överbrädorna dubbelspikas eller dubbelskruvas med panelspik ∅ 2,8 × 70 136 eller panelskruv ∅ 4,8 × 70 123 och med kantavstånd 30 i bärläkten men inte genom underbrädorna. Det är viktigt att de övre brädornas panelspikar eller skruvar inte går igenom de undre brädorna för att motverka sprickbildning. Panelspik eller panelskruv ska monteras så att huvudet är i jämn nivå med brädans översida – de ska inte monteras för djupt så att virket kan skadas och orsaka fuktsamlande fickor. Beslag till faltak kan utföras av rostfri plåt.
De övre, yttre brädorna på faltaket på gaveln ges måttet 50 utanför den undre brädan, detta för att ge utrymme för montering av vindskiva mot underkant av den övre ytterbrädan.
Innertakspanel
Börja med att underifrån lägga träfiberisolering 120 63.
Fortsätt med att häfta fast åldersbeständig plastfolie 0,20 64 mot de impregnerade takreglarnas 45 × 120 41 i hållfasthetsklass C24 och i träskyddsklass NTR AB undersida, med nedvik 200 mot de impregnerade väggreglarna 45 × 70 34. Innertakspanelen består av spontad ytterpanel 22 × 145 58 av gran, sort G4-2 eller bättre, mot det bärande regelverket. Klyvsåga nederkanten på nedersta panelbrädan i 34 graders vinkel mot hammarbandet 115 × 115 27. Spontad ytterpanel 22 × 145 58 ska dubbelspikas eller dubbelskruvas i varje fästpunkt med rostfri A4 panelspik 2,8 × 48 135, eller rostfri panelskruv ∅ 4,8 × 48 172, med kantavstånd 30 från under- respektive överkant. Centrumavstånd mellan panelspik eller panelskruv ska vara maximalt 600. Panelspiken eller panelskruven monteras vinkelrätt in mot panelens utsida, på ett sådant sätt att spikskallen eller skruvhuvudet kommer i nivå med panelbrädans utsida, inte djupare, detta för att undvika fuktinträngning och framtida missfärgning. Eventuella utstickande spikskallar eller skruvhuvuden drivs i efterhand in manuellt tills de är exakt i nivå med panelytan.
Observera
Impregnerat virke som ska byggas in i den värmeisolerade förrådsdelen får inte ha ytfuktkvot över 18 % vid inbyggnad. Kontrollera även att målfuktkvoten får vara högst 16 %.
Börja med att skära till och lägga helklistrat fuktskyddsmembran bredd 200 65 mellan impregnerad staketläkt 28 × 45 72 , sort G4-2 och i träskyddsklass NTR AB, syll 45 × 145 18 och överbleck 80 120 samt mot stödbrädan av impregnerad ytterpanelbräda 22 × 145 73, sort G4-2 och i träskyddsklass NTR AB, intill den på syllen monterade regeln av impregnerat konstruktionsvirke 45 × 70 34 i hållfasthetsklass C24 och i träskyddsklass NTR AB.
Innerpanelen består av horisontell spontad ytterpanel 22 × 145 58, sort G4-2 av gran. Börja med att montera den nedersta panelbrädan.
Spontad ytterpanel 22 × 145 58 ska dubbelspikas eller dubbelskruvas i varje fästpunkt med panelspik rostfri A4 ∅ 2,8 × 48 135 eller panelskruv rostfri A4 ∅ 4,8 × 48 169 med kantavstånd 30 från underkant respektive överkant. Centrumavstånd mellan panelspikar eller mellan panelskruvar ska vara maximalt 600. Panelspiken eller panelskruven monteras vinkelrätt in mot panelens utsida, på ett sådant sätt att spikskallen eller skruvhuvudet kommer i nivå med panelbrädans utsida, inte djupare. Detta för att undvika fuktinträngning och framtida missfärgning. Eventuella utstickande spikskallar eller skruvhuvuden drivs i efterhand in manuellt tills de är exakt i nivå med panelytan. Fortsätt med övriga panelbrädor. Den översta panelbrädan tillsågas i ovankant i så att den linjerar den impregnerade karmens av trall 34 × 145 76, sort G4-2 och i träskyddsklass NTR AB, ovankant.
Lägg därefter träfiberisolering 70 79 mellan väggreglarna 45 × 70 34 i de ytterväggspartier som inte utgörs av öppningar för vädringsluckor. Montera vindduk 78, klass W1, på väggreglarnas 45 × 70 34 utsida och häfta vindduken med klammer. På reglarna, montera tillsågade remsor av hård träfiberskiva 8 74. Hård träfiberskiva 8 74 spikas med huggen räfflad varmförzinkad dyckert 1,7 × 35 161 centrumavstånd 300, alternativt fästs med klammer 16 163. Börja med att montera ett impregnerat staketläkt 28 × 45 72 sort G4-2 och i träskyddsklass NTR AB på kanten av syllen 45 × 145 18.
Montera därefter offerbräda av impregnerad trall 34 × 120 75, sort G4-2 och i träskyddsklass NTR AB med snedsågad innerkant. Därefter, montera ytterpanelen av liggande limträytterpanel 25 × 225 71 av gran, sort G4-1. Börja med att montera den nedersta liggande limträytterpanelbrädan 25 × 225 mot syllen, 20 ovanför offerbräda av impregnerad trall 34 × 120 75.


Liggande limträytterpanel 25 × 225 71 ska dubbelspikas eller dubbelskruvas i varje fästpunkt med varmförzinkad panelspik 2,8 × 55 137 eller varmförzinkad panelskruv ∅ 4,8 × 55 170 med kantavstånd från underkant 45 och från fasens övre kant 30. Om limträpanelen inte ska målas eller om den ska järnvitriolbehandlas ska panelspik eller panelskruv som är rostfri A4 användas. I övrigt lika anvisningar som anges för 22 × 145 58 spontad ytterpanel av gran, sort G4-2. Fortsätt med övriga liggande limträytterpanelbrädor. Den översta panelbrädan under fönsterpartiet tillsågas i ovankant så att den linjerar fönsterunderliggarens underkant.
Fönsterpartiets karm består av impregnerad trall 34 × 145 76, sort G4-2 och i träskyddsklass NTR AB. Börja med att skruva överliggaren 34 × 145 i hammarbandet av impregnerad limträbalk 115 × 115 27 i hållfasthetsklass GL24h och träskyddsklass NTR BGL, därefter underliggaren mot väggpartiets impregnerade väggreglar 45 × 70 34 i hållfasthetsklass C24 och i träskyddsklass NTR AB. Skruva därefter fast de båda sidopartierna i de impregnerade limträpelarna 115 × 115 25 i hållfasthetsklass GL24h och i träskyddsklass NTR BGL.







I växthuset finns två stycken pardörrar. Dörrparet i det glasade gavelpartiet består av två glasade dörrar och dörrparet mellan växthusdelen och förrådsdelen består antingen av paneltäckta pardörrar eller glasade pardörrar, efter eget önskemål. De båda dörrparen är försedda med tappbärande lyftgångjärn 91, höjdjusterbara, två per sida, 110 × 98.
I det paneltäckta dörrparet är vardera dörren uppbyggd på en ram av dimensionshyvlad 34 × 70 87 gran, sort G4-2, samt av dimensionshyvlad 34 × 45 86 gran, sort G4-2 med diagonalställda reglar dimensionshyvlad 34 × 45 86 gran, sort G4-2, monterade halvt i halvt i krysset. På ramens överstycke är monterad en täckbräda bestående av dimensionshyvlad 20 × 95 85, gran i sort G4-2. En läkt 12 × 48 56 av gran, sort G4-2, monteras på gångjärnens utsida och fästs med räfflad dyckert 161 1,7 × 35, varmförzinkad.
Panelen består av spontad ytterpanel 22 × 145 58, av gran, sort G4-2 vänd med den hyvlade ytan in mot ramen och med fjäder och not bortsågade på respektive yttre panelbrädorna, så att måttet justerats och de båda yttre brädorna har samma breddmått på respektive dörrblad.

Ytterkarmen består av impregnerad trall 34 × 145 76, sort G4-2 och i träskyddsklass NTR AB, där ytterkarmens överdel monteras i ett ursågat 10 mm hakparti på ytterkarmens sidodelar. Istället för foder ansluter den liggande spontade ytterpanelen 22 × 145 58, gran, sort G4-2 mot ytterkarmens stående och liggande delar. Den nedersta delen av ytterkarmen, mot lättklinkerblockmuren 4, fylls med 10–12 putsbruk 100/300 7 och jämnas av. På insidan av karmen skruvas ett anslag ovanför och på sidorna. Anslaget består av läkt 25 × 23 92, gran, sort G4-2. Spontad ytterpanel av 22 × 145 58, gran, sort G4-2, täckande bredd 105, spikas med 2 stycken trådspik 2,3 × 60 131, varmförzinkade.
Det glasade dörrparet, där vardera dörren har fyra glasrutor, är uppbyggd på en ram av stående dimensionshyvlad 34 × 45 86, gran, sort G4-2 och med en fotbräda av dimensionshyvlad 34 × 95 88, gran, sort G4-2. De två nedre spröjsarna består av dimensionshyvlad 34 × 45 89, gran, sort G4-2, den översta av 25 × 23 dimensionshyvlad 90, gran, sort G4-2. Ramen består av dimensionshyvlad 34 × 45 86, gran, sort G4-2. Dörrens ram skruvas med träskruv ∅ 5,0 × 80 166, ytbehandling zink/nickel i korrosivitetsklass C4, kompletterad med sammanfogning med universalskruv ∅ 6,5 × 65 177 i korrosivitetsklass C4. Spröjs skruvas med träskruv ∅ 4,0 × 50 165, ytbehandling zink/nickel i korrosivitetsklass C4 efter förborrning med träborr ∅ 3,0.
Glasen, 6 mm planglas 122, är monterade i en fals med bredd 8 och djup 14. Skälet till glasets tjocklek är att det bidrar till att stabilisera respektive dörr. Spåren i sidostyckena och spröjsarna fräses före monteringen.


Observera att spröjsarnas mått består av avståndet mellan sidoreglarna plus två gånger falsens mått, detta för att täcka sidostyckets fals med spröjsen. Spröjsar och horisontella ramdelar sågas därefter ur med 482 (måttet mellan reglarna 34 × 45 86 i ramen plus 8 på varje sida som sparas för monteringen i sidostyckenas respektive fals). Dörrbladen monteras därefter samman, horisontella delar och vertikala, varvid diagonalmåtten kontrolleras. De skilda delarna monteras med trätappar, brickor eller universalskruv ∅ 6,5 × 65 177 i korrosivitetsklass C4 samt limmas med väderbeständigt trälim för utomhusbruk 178.

Monteringen av glasrutorna sker genom att rutorna antingen stiftas med stifttråd (glasmästartråd) av koppar ∅ 1,2 124 med centrumavstånd 150, eller med stiftpistol och kilformade stift. Kittningen ska ske med svart akrylbaserat silikonfritt fönsterkitt 84 som appliceras med fogspruta. Ingen förbehandling av glasfalsen krävs.
Ytterkarmen består av impregnerad trall 28 × 145 94, sort G4-2 och i träskyddsklass NTR AB. På insidan av karmen skruvas ett anslag ovanför och på sidorna. Anslaget består av läkt 25 × 23 92, gran, sort G4-2. Staketläkt impregnerad 28 × 45 104 sort G4-2 och i träskyddsklass NTR AB skruvas med panelskruv ∅ 4,8 × 48 169 rostfri A4, centrumavstånd 400 varvid skruvhuvudet försänks och skruven förborras. En läkt 12 × 48 56 av gran, sort G4-2, monteras på gångjärnens utsida och fästs med räfflad dyckert 161 1,7 × 35, varmförzinkad.
I öppningen för dörrpartiet i växthusdelens gavelparti avjämnas lättklinkerblocken med puts av cementbruk 10–12, 100/300 7. På det avjämnade lagret av putsbruk läggs syllisolering bredd 150 i kvalitet YEP 2500 17. Fotplåt 179 läggs på syllisoleringen med övre falsen vilande på kantbrädan av impregnerad trall 34 × 145 24 med en remsa 40 syllisolering 17 mellan kantbräda och plåt.

Båda dörrparen har ett rullås 185 mellan dörrarna som ger en smidig funktion. Rullåset monteras på den primära öppningsdörren, här på högra dörrbladet. På det motstående dörrbladet monteras slutbleck. Montera draghandtag 184 på båda sidor av den dörr där rullåset monteras. I den andra dörrens ovankant monteras en kantregel 186 för att hålla dörren på plats i stängt läge.
Växthuset är försett med tio vädringsluckor, fyra i glasdelens tak, fyra i glasdelens väggpartier samt två i förrådsdelens gavelparti. Dörrarna i det glasade gavelpartiet fungerar också som ventilationsöppningar. Dörrarna mellan växthusdel och förrådsdel saknar tröskel, detta för att bidra till luftväxlingen även när dörrarna hålls stängda. Dörrarna i det glasade gavelpartiet saknar också tröskel, av samma anledning. Takets fönsterluckor regleras med automatiskt öppningsbeslag 115, se Nockparti med fönsterluckor tak i växthusdel.

Fönsterluckorna i tak och vädringsluckorna i förråd har en ram bestående av impregnerad regel 45 × 45 100, sort G4-2 i träskyddsklass NTR AB. Fönsterluckorna i vägg har en ram bestående av impregnerad staketläkt 28 × 34 103, sort G4-2 och i träskyddsklass NTR AB. Alla fönsterluckor har ett fräst spår med djup 16 samt bredd 8. Glasrutorna i 4 mm säkerhetsglas 70 monteras i glasfalsen på en kronlist 4 × 9 66, EPDM, cellgummi, svart, och förseglas med svart akrylbaserat silikonfritt fönsterkitt 84.
Fönsterluckorna i tak placeras mellan de båda mittre impregnerade takreglarna 45 × 95 42, av konstruktionsvirke i hållfasthetsklass C24 och i träskyddsklass NTR AB med falsar och kronlist 4 × 9 66, EPDM, cellgummi, svart, samt mot impregnerad kortling 45 × 95 108 av konstruktionsvirke i hållfasthetsklass C24 och i träskyddsklass NTR AB, som snedsågas i vinkel 34 grader och skruvas i den impregnerade nockbalken av limträ 115 × 315 28 i hållfasthetsklass GL30c och i träskyddsklass NTR BGL.


De två rostfria kantgångjärnen 89 × 58 113 skruvas i den impregnerade kortlingen 45 × 95 108 av konstruktionsvirke i hållfasthetsklass C24 och i träskyddsklass NTR AB, samt i övre bågen av impregnerad regel 45 × 45 105, sort G4-2 och i träskyddsklass NTR AB. Takluckans båge vilar på två impregnerade staketläkt 28 × 45, L = 650 106, sort G4-2 och i träskyddsklass NTR AB, som skruvas i respektive intilliggande impregnerade takregel 45 × 95 42, sort G4-2 och i träskyddsklass NTR AB, samt i nederkant mot en kortling av impregnerad staketläkt 34 × 45, L = 385 107, sort G4-2 och i träskyddsklass NTR AB. Takluckorna öppnas med automatiska öppningsbeslag 115 eller motsvarande manuella öppningsbeslag.

I växthusdelens väggparti finns två fönsterluckor på vardera långsidan, mellan reglar 45 × 70 34 under glastakets fönsterluckor. På de mittre väggreglarna 45 × 70 34, i nederkant mot väggluckan, är karmstycke av impregnerad staketläkt 34 × 45 99, sort G4-2 och i träskyddsklass NTR AB monterat, i ovankant, karmstycke 28 × 34 101 av impregnerad staketläkt 28 × 45, sort G4-2 och i träskyddsklass NTR AB. På väggreglarnas sidor, bakom bågen, är karmstycken av impregnerad staketläkt 28 × 45 102, sort G4-2 och i träskyddsklass NTR AB monterade. Fönsterluckorna i växthusdelens väggpartier består av båge av impregnerad staketläkt 28 × 34 103, sort G4-2 och i träskyddsklass NTR AB, som monteras i ovankant med två kantgångjärn 89 × 58 113, rostfria, som skruvas i det impregnerade hammarbandet av limträ 115 × 115 27 i hållfasthetsklass GL24h och träskyddsklass NTR BGL. På fönsterramens nederdel monteras en förbockad 50/50 skyddsplåt 109 som täcker spalten mot kortling av impregnerad staketläkt 103. Glasrutorna i 4 mm säkerhetsglas 70 monteras i fönsterluckans glasfals och förseglas med svart akrylbaserat silikonfritt fönsterkitt 73.
Fönsterluckorna i vägg låses i uppställt läge med stormhasp 300 116 varmförzinkad och i infällt läge med fönsterlås 114.
De två vädringsluckorna i förrådsdelens gavelparti består av bågar av impregnerad regel 45 × 45 100, sort G4-2 och i träskyddsklass NTR AB på vilken väggpanel av liggande limträytterpanel 25 × 225 71, gran, sort G4-1 är monterad. I den liggande limträpanelen är ett ventilationsgaller av gjuten aluminium 117, runt med nät, stos ∅ 125, monterat. Diametern på hålet för ventilen borras ∅ 100 så det passar ramens innermått och ventilens diameter.


Vädringsluckorna i gavelpartiet är monterade i en karm i gavelpartiet. Karmen består av karmläkt av impregnerad staketläkt 34 × 45 104, sort G4-2, och i träskyddsklass NTR AB, samt kortling av impregnerad panelbräda 22 × 145 73, sort G4-2 och i träskyddsklass NTR AB. På insidan av vädringsluckan monteras en ram av impregnerad trall 34 × 95 37, sort G4-2 och i träskyddsklass NTR AB.
I vädringsluckornas ovankant monteras två kantgångjärn 89 × 158 113, rostfria, som skruvas i kortling av impregnerad ytterpanelbräda 22 × 145 36. Fönsterbleck av underbleck 80 118 och droppbleck av överbleck 80 120 monteras enligt sektion öppen vädringslucka.
Vädringsluckorna i vägg låses i uppställt läge med stormhasp 300 116, varmförzinkad, och i infällt läge med fönsterlås 114. Se detalj sektion stängd vädringslucka.

Ovansidan av den impregnerade nockbalken av limträ 115 × 315 28 i hållfasthetsklass GL30c och i träskyddsklass NTR BGL skyddas över växthusdelen med ett undre förbockat plåtbeslag 121 samt en övre förbockad plåtavtäckning 112 L = 3 135 som klipps vid respektive fönsterlucka i taket. Mellan undre plåtbeslag 68 och nockbalken 28 monteras helklistrat fuktskyddsmembran bredd 600 183.
På den del av nockträbalken som ligger över förrådsdelen, under faltaket, monteras en förbockad plåtavtäckning 67, se Plåtavtäckning förrådsdel, sidan 23. Mellan undre plåtavtäckning 112 och nockbalken 115 × 315 28 monteras helklistrat fuktskyddsmembran bredd 600 183.


Börja med monteringen av glasrutorna av säkerhetsglas 4 70 på väggarnas långsidor, fortsätt med montering av glasrutorna av säkerhetsglas 4 70 på de båda takfallen och avsluta med montering av glasrutorna av planglas 6 122 på gavelpartiet.
Glasrutorna hålls på plats av täckbräda av impregnerad staketläkt 28 × 45 61, sort G4-2 och i träskyddsklass NTR AB, skruvade på distansläkt 12 × 22 57 som är klyvsågade ur läkt 12 × 48 56, gran, sort G4-2. Glasrutorna kläms mot vägg- och takreglar med kronlist 4 × 9 av självhäftande svart EPDM cellgummi 66 och täckbräda av impregnerad staketläkt 28 × 45 61, sort G4-2 och i träskyddsklass NTR AB. Se detalj Ä Ö. Mot limträpelare 115 × 115 25 i hållfasthetsklass GL24h och i träskyddsklass NTR BGL monteras 2 stycken läkt 12 × 48 56, gran, sort G4-2 samt täckbräda av impregnerad ytterpanel 22 × 120 128, sort G4-2 och i träskyddsklass NTR AB. Se detalj Z.
Inför monteringen av glasrutorna av säkerhetsglas 4 70, skruva fast distansläkt 12 × 22 57, gran, sort G4-2 på vägg- och takreglar. Såga till mallar av oljehärdad hård träfiberskiva 4 125, en skiva per glasruta 70, för att få måtten rätt mellan reglar och påskruvade distansläkt 12 × 22 57. Kontrollera att glasrutorna kommer att kunna ligga mellan listverket utan att klämmas i sidled.
Observera Lämna 3 ställplats mellan glas och trä för att träet ska kunna krympa och svälla.
Applicera sedan kronlist 4 × 9 66 av självhäftande svart EPDM cellgummi på väggreglarnas kanter där glasrutorna ska monteras. Förborra därefter täckbrädorna av impregnerad staketläkt 28 × 45 61, sort G4-2 och i träskyddsklass NTR AB som ska hålla glasrutorna på plats. Använd försänkare för skruvhuvudet. Applicera en 100 lång kronlist 4 × 9 66 av självhäftande svart EPDM cellgummi mitt på glasrutans nederkant som skyddar glasrutan om den skulle glida ner på fotplåten 150/50 16 på syllen av impregnerat konstruktionsvirke 45 × 145 18 i hållfasthetsklass C24 och i träskyddsklass NTR A. Se till att det finns en luftspalt 4 mellan fotplåten 16 och glasrutan.



Montera glasrutorna på vägg. Lämpligen utförs monteringen av glasrutorna av två personer, en som håller glasrutan av säkerhetsglas 4 70 och en som fäster först en kronlist 4 × 9 66 på övre sidokanterna av glasrutan och därefter skruvar fast täckbrädorna av staketläkt 28 × 45 61, sort G4-2 och i träskyddsklass NTR AB och på så vis klämmer glasrutan mellan väggregel och staketläkt. Skruva fast täckbrädorna 28 × 45 61 försiktigt med panelskruv ∅ 4,8 × 70 123, rostfri A4, varvid de förborrade, försänkta hålen används.
Förbered därefter monteringen av glasrutorna i tak efter att först ha kontrollerat måtten med mallar av oljehärdad hård träfiberskiva 4 125. Applicera därefter kronlist 4 × 9 66 av självhäftande svart EPDM cellgummi på de impregnerade takreglarnas 45 × 95 42 av konstruktionsvirke i hållfasthetsklass C24 och i träskyddsklass NTR AB kanter. Förborra därefter täckbrädorna av impregnerade staketläkt 28 × 45 61, sort G4-2 och i träskyddsklass NTR AB som ska hålla glasrutorna på plats på takreglarna och använd försänkare för skruvhuvudet.
Montera glasrutorna 70 på tak. Lämpligen utförs detta av två personer, en som håller glasrutan och en som fäster först en kronlist 4 × 9 66 av självhäftande svart EPDM cellgummi på övre sidokanterna av glasrutan och skruva därefter fast täckbräda av impregnerad staketläkt 28 × 45 61, sort G4-2 och i träskyddsklass NTR AB. På så vis kläms glasrutan mellan takregel 45 × 95 42 och staketläkt 28 × 45 61. Skruva fast staketläkt 28 × 45 61 med panelskruv ∅ 4,8 × 70 123, rostfri A4, och använd de förborrade hålen. Täckbräda av impregnerad staketläkt 28 × 45 61, i sort G4-2 och i träskyddsklass NTR AB skruvas med rostfri panelskruv A4 ∅ 4,8 × 70 123 centrumavstånd 400, varvid huvudet försänks och skruven förborras. Skruva fast täckbrädorna försiktigt och inte för hårt.
Fortsätt därefter med monteringen av glasrutorna av planglas 6 122 i gavelpartiet. De båda glaspartierna på sidan av pardörrarna är uppdelade på en övre och en undre glasruta. Mellan glasrutorna av planglas 6 122 monteras en kortling av impregnerad trall 34 × 95 37, sort G4-2 och i träskyddsklass NTR AB, med lutning 8 grader. Applicera en 100 lång kronlist 4 × 9 66 av självhäftande svart EPDM cellgummi mitt på glasrutans nederkant som skyddar i den händelse glasrutan skulle komma att glida ner på kortlingen av impregnerad trall 34 × 95 37.

De två glasrutorna av säkerhetsglas 4 70 i förrådsdelen monteras mellan karm av impregnerad trall 34 × 145 76, sort G4-2 och i träskyddsklass NTR AB. Glasrutan hålls på plats med distansläkt 12 × 22 57, sort G4-2, klyvd ur läkt 12 × 48, gran. Läkten spikas i karmen med räfflad dyckert 1,7 × 35 161, varmförzinkad. Inför monteringen av glasrutorna, limma två stycken stavar 3 × 3, längd 50, cirka 100 från hörnet på glasrutan, detta för att kunna fylla fogen mellan karm och glas med akrylbaserat silikonfritt fönsterkitt, svart 84. Respektive glasruta tätas mot karmen med fönsterkitt 84. Inför tätningen hålls glasrutan på plats med stifttråd (glasmästartråd) av koppar ∅ 1,2 124, centrumavstånd 150, som slås i med stifthammare, alternativt med glasstift som appliceras med stiftapparat.




Växthuset är försett med knutbrädor, täckbrädor och foderbrädor. Knutbrädorna består av impregnerad ytterpanelbräda, 22 × 145 126 sort G4-2 i träskyddsklass NTR AB, respektive 22 × 170 129 sort G4-2 i träskyddsklass NTR AB. Foderbrädorna består av impregnerad ytterpanelbräda 22 × 145 130 sort G4-2 i träskyddsklass NTR AB.


Täckbrädorna består av impregnerad ytterpanelbräda 22 × 120 128 sort G4-2 i träskyddsklass NTR AB, och täcker impregnerade limträpelare 115 × 115 25 i hållfasthetsklass GL24h och i träskyddsklass NTR BGL, samt klämmer fast glasrutor i växthusdelen. I ett par fall behöver knutbrädorna 126 klyvsågas till passande bredd. I den panelklädda delen av växthuset behöver stödläkt monteras bakom knutbrädor. Stödläkten består av läkt 22 × 23 131 samt 18 × 22 132, klyvd ur impregnerad ytterpanelbräda 22 × 145 93, sort G4-2 och i träskyddsklass NTR AB.


Knutbrädorna spikas ihop med varmförzinkad dyckert 2,3 × 60 162, centrumavstånd 150, alternativt med panelskruv ∅ 4,8 × 48 172, rostfri A4, centrumavstånd 200.
Foder spikas med kamspik 2,8 × 75 139, rostfri A4, alternativt panelskruv ∅ 4,8 × 75 173, rostfri A4.
Vindskivorna består av impregnerad ytterpanelbräda 22 × 145 133, sort G4-2 och i träskyddsklass NTR AB, och impregnerad ytterpanelbräda 22 × 170 181, sort G4-2 och i träskyddsklass NTR AB, som monteras efter det att knutbrädor och foderbrädor monterats. Knutbrädor och foderbrädor ihopspikas med varmförzinkad trådspik 2,8 × 75 133 sicksackvis, centrumavstånd 150, alternativt panelskruv ∅ 4,8 × 48 172, rostfri A4, centrumavstånd 200.
Vattbräda på växthusdelen består av impregnerad ytterpanelbräda 22 × 170 127, sort G4-2 och i träskyddsklass NTR AB. Använd trådspik 2,3 × 60 130, rostfri A4, centrumavstånd 150, eller panelspik 2,8 × 55 138, rostfri A4, alternativt panelskruv ∅ 4,8 × 48 169, rostfri A4, centrumavstånd 200.
Växthuset har en markbädd som är dränerad och fuktgenomsläpplig. Markbäddens yta ligger cirka 200 över marknivån utanför växthuset och gången inne i växthuset och i nivå med underkant av impregnerad syll 45 × 145 18. På så vis blir markbädden snabbare uppvärmd. Markbäddens består av 550–600 planteringsjord 142. I botten av markbädden, i yttermurens nedersta skift av lättklinkerblock 150 × 190 × 590 4, finns hål med bredden 290 och höjden 190, se grund med håltagningar och dörröppningar, sidan 6, så att rötterna kan ha förbindelse ut i omgivande mark. Vill man plantera en vinranka, placeras denna på växthusets utsida och rötterna leds sedan in i markbädden. Fördelen med att plantera vinrankan utanför växthuset är att rötterna då kan söka sig fritt till omgivande jord och därigenom bättre försörja den vinranka som växer inne i växthuset.
Markbädd
Markbädden står på ett cirka 200 tjockt lager av tvättad makadam 16/32 147. Under detta dräneringslager ligger dräneringsrör ∅ 110 2 med flexböj, skarvmuff samt spolbrunn. I botten av markbädden läggs en fiberduk kl 2 14 och på den en markisoleringsskiva 50 av extruderad cellplast 11 XPS. Önskas en jämn temperatur även vintertid, monteras en värmekabel 144 på den extruderade cellplastskivan 11 varpå värmekabeln skyddas med en 12 fibercementskiva 143.
Planteringslåda
Planteringslådan består av en upphöjd bädd av planteringsjord 142, där jordytan ligger cirka 400 över golvet av impregnerad trall 34 × 145 22 och jorddjup är cirka 200. Fördelen med den upphöjda bädden är att den blir snabbare varm än markbädden när solstrålarna når växthuset och därför kan användas tidigare på våren än markbädden. Planteringslådan står på lättklinkerblock 70 × 190 × 590 146 som i sin tur står på växthusets golv av impregnerad trall 34 × 145 22. Mellan lättklinkerblocken och golvet läggs syllisolering bredd 200 i kvalitet YEP 2500 182. Själva planteringslådan består av impregnerat virke i träskyddsklass NTR A och NTR AB och är fodrad invändigt på sidorna och i botten med fuktisoleringsmatta 145 . Golvet i planteringslådan består av impregnerade reglar av konstruktionsvirke 45 × 145 137 i hållfasthetsklass C24 och i träskyddsklass NTR A. Sargen i planteringslådan består av impregnerat konstruktionsvirke 45 × 145 137 i hållfasthetsklass C24 och i träskyddsklass NTR A, samt regel av impregnerat konstruktionsvirke 45 × 70 138 i hållfasthetsklass C24 och i träskyddsklass NTR AB. Lådans sarg 137 138 skruvas på den sida som vetter inåt mittgången med panelskruv ∅ 4,8 × 75, rostfri A4 173 i impregnerat konstruktionsvirke 45 × 70 136 i träskyddsklass NTR AB. På andra sidan av planteringslådan skruvas kortlingar av impregnerad trall 34 × 95 37 i sort G4-2 och i träskyddsklass NTR AB hållfasthetsklass C24 i sargen 137 138.
I botten av planteringslådan läggs ett dränerande lager 100 av tvättad makadam 16/32 148 och fiberduk kl 2 14 på vilken planteringsjorden läggs. Jorden i den upphöjda bädden behöver bytas något oftare än i markbädden, ungefär vartannat år.




Arbetsbänkarna består av sammanfogade brädor av slätspont 27 × 120 139, gran, sort G4-2 där fjädern sågats av på ena ytterbrädan och noten sågats av på den motstående ytterbrädan. Slätsponten skruvas underifrån mot tre stycken läkt av 25 × 48 140, gran, sort G4-2, med träskruv med försänkt huvud, ∅ 4 × 40 164, ytbehandling zink/nickel i korrosivitetsklass C4. Bänkskivorna vilar på kortsidorna på regel av dimensionshyvlad 45 × 45 141, gran, sort G4-2.
Arbetsbänkarna som placeras i växthusets förrådsdel är flyttbara. De kan läggas på sittbrädorna på planteringslådorna när dessa inte odlas i och de kan användas som bordsskivor i växthusdelen på uppställda bockar och då fungera som bord.
Läs mer om bockar i byggbeskrivning Bockar.


Sittbräda – markbädd
Markbäddens inre mur av lättklinkerblock 90 × 190 × 590 6 med syll av impregnerat konstruktionsvirke 45 × 95 19 i hållfasthetsklass C24 och i träskyddsklass NTR AB kan förses med en sittbräda. Sittbrädan består av impregnerat konstruktionsvirke 45 × 220 135 i hållfasthetsklass C24 och i träskyddsklass NTR A. Sittbrädan står på vertikala reglar av konstruktionsvirke 45 × 95 134 i hållfasthetsklass C24 och i träskyddsklass NTR AB, centrumavstånd 556, samt vilar på underliggande horisontell impregnerad regel av konstruktionsvirke 45 × 70 35 i hållfasthetsklass C24 och träskyddsklass NTR AB. Den underliggande regeln 45 × 70 vilar på vertikala reglar av impregnerat konstruktionsvirke 45 × 70 136 i hållfasthetsklass C24 och i träskyddsklass NTR AB. Om sittbrädan 45 × 220 135 med underliggande vertikala reglar 45 × 95 134 ska flyttas så att planteringslådan kan täckas med till exempel en arbetsbänk, används vinkelbeslag 90 × 90 × 65 som skruvas med ankarskruv 4,0 × 40 175, varmförzinkad, i de vertikala reglarna 45 × 95 134.


Sittbrädor av impregnerat konstruktionsvirke 45 × 220 135 skruvas underifrån, från sidan i 45 graders vinkel mot impregnerade reglar av konstruktionsvirke 45 × 95 19 med träskruv ∅ 5,0 × 80 166, ytbehandling: zink/nickel i korrosivitetsklass C4, rostfritt, rostfritt/syrafast, varmförzinkat.
Sittbräda – planteringslåda
Planteringslådan förses med en sittbräda av impregnerat konstruktionsvirke 45 × 220 135 i hållfasthetsklass C24 och i träskyddsklass NTR A som vilar på vertikala stöd av impregnerat konstruktionsvirke 45 × 70 136 i hållfasthetsklass C24 och i träskyddsklass NTR AB samt en horisontell impregnerad regel i konstruktionsvirke 45 × 70 136 i hållfasthetsklass C24 och i träskyddsklass NTR AB. På planteringslådans bakre vägg monteras kortlingar med centrumavstånd 500 av impregnerad trall 34 × 95 37, sort G4-2 och i träskyddsklass NTR AB. Dessa utgör underlag för den flyttbara bänkskivan när planteringslådan, eller en del av denna, inte används utan fungerar som avställningsyta eller sittbänk.


Utvändig målningsbehandling
Avsikten med ytbehandling på utvändigt trä är dels att ge träet en kulör som ska passa in i den yttre miljön och i vissa fall motverka träets naturliga färgförändring, dels att ge konstruktionen ett skyddande skikt mot väder och annan fysisk och kemisk påverkan.
Obehandlat trä tar normalt inte skada av fukt om det har möjlighet att torka ut mellan uppfuktningarna. Utvändigt trä som är skyddat från direkt nederbörd eller markfukt, till exempel fasader, behandlas därför främst av utseendeskäl.
Genom ytbehandling kan fuktrörelser minskas och yterosionen förhindras. Ytbehandling kan ge ett visst rötskydd, dels på grund av en ytbehandlings vattenavvisande effekt, dels på grund av att ytbehandlingsmedlet kan innehålla rötskyddande tillsatser. En förutsättning är att den konstruktiva utformningen är rätt utförd så att fuktbelastningen inte blir för hög. Vid val av färgtyp och utförande måste man se till att ytbehandlingen inte ökar risken för skador genom att medverka till ökad fukthalt i träet och fördröja uttorkningen.
Det finns industriella färgsystem som påförs innan leverans till byggarbetsplatsen. Industriellt ytbehandlade utvändiga panelbrädor som är märkta enligt tredjeparts certifieringssystemet Certifierad Målad Panel, CMP, uppfyller byggbranschens krav på ytbehandling av utvändigt trä. Den industriella ytbehandlingen ger ett jämnare slutresultat, längre underhållsintervall och en bättre totalekonomi. Industriellt ytbehandlade utvändiga panelbrädor förekommer som grundmålade i ytbehandlingsklass CMP-G och grundmålade plus mellanstrukna i ytbehandlingsklass CMP-G/M. För bästa resultat färdigmålas industriellt ytbehandlade utvändiga panelbrädor enligt rekommendation från färgtillverkaren.
Läs mer om ytbehandling i byggbeskrivningarna Nymålning av utvändigt trä, Måla utomhus och Certifierad Målad Panel.
Invändig målningsbehandling
Den obehandlade träpanelen samt arbetsbänkarna ska behandlas för att lätt kunna rengöras och underhållas under odlingssäsongen samt när odlingssäsongen är över och växthuset förbereds för den kalla årstiden.
Ytterpanelbrädor
För de liggande spontade ytterpanelbrädorna 22 × 145 58 av gran, sort G4-2, på vägg och i tak gäller grundoljning, samt toppstrykning med lasyr enligt färgtillverkarens anvisningar.
Stryk grundolja på de spontade ytterpanelbrädorna före monteringen. Stryk en gång på hela ytterpanelbrädan. I samband med uppsättningen, var noga med att stryka grundolja på ändträet. Applicera grundoljan tills träet är mättat utan att bilda en blank yta. Vänta sedan inte längre än en dag innan första strykningen med toppmålning med ofärgad lasyr sker. Grundoljan skyddar mot vattenupptagning och jämnar ut träets insugning inför lasering.
Observera
Använd inte täcklasyr.
Stryk lasyren på en bräda i taget för att minska risken för överlappning och ojämn kulör. Stanna inte mitt på innerväggsytan eller innertaksytan. Lasera alltid med två strykningar eller enligt färgtillverkarens anvisningar. Var noga med att behandla hela vägg- alternativt takytan samtidigt för att undvika överlappskarvar.
Arbetsbänkar och övrigt obehandlat trä
För brädorna av slätspont 27 × 120 139 av gran, sort G4-2, till arbetsbänkar samt övrigt obehandlat trä gäller grundoljning.
Olja in brädorna före monteringen. Stryk en gång på hela brädan. I samband med uppsättningen, var noga med att stryka olja på ändträet. Applicera grundoljan tills träet är mättat utan att bilda en blank yta. Detta gäller även arbetsbänkarna.
Måla inte på fuktigt trä. Fuktkvoten (= kvot av vattnets vikt och träets torrvikt) bör inte överstiga 16 % – gäller även för impregnerat trä. Vid fuktigare trä riskerar man att det bildas blåsor i färgskiktet. Träets ytfuktkvot kontrolleras med en elektrisk fuktkvotsmätare.
Behandling av invändigt tryckimpregnerat trä och limträ
Invändigt tryckimpregnerat trä, såväl tryckimpregnerat limträ som reglar och läkt, ska behandlas för att lätt kunna rengöras och underhållas under odlingssäsongen samt när odlingssäsongen är över och växthuset förbereds för den kalla årstiden. Använd träolja eller lasyr.
Applicera grundoljan tills träet är mättat utan att bilda en blank yta. Fuktkvoten (= kvot av vattnets vikt och träets torrvikt) bör inte överstiga 16 %. Träets ytfuktkvot kontrolleras med en elektrisk fuktkvotsmätare.
Tips! Scrolla tabeller i sidled för att se all info.
| Nr | Beskrivning |
| Grund | |
| 1 | Betongsula 200 × 300 av grovbetong, K40, C32/40 |
| 2 | Dräneringsrör ∅ 110 med flexböj, skarvmuff samt spolbrunn |
| 3 | Armering 3 ∅ 12, B 500 BT, som bockas i ändarna |
| 4 | Lättklinkerblock 150 × 190 × 590 |
| 5 | Lättklinkerblock 120 × 190 × 590 |
| 6 | Lättklinkerblock 90 × 190 × 590 |
| 7 | Puts av cementbruk 10–12, 100/300 |
| 8 | Bistålsarmering, rostfri BI 37 RF, korrosionsskydd R3 |
| 9 | Hålkäl av grovbetong, K40, C32/40 |
| 10 | Dräningslager av tvättad makadam 150, 16/32 |
| 11 | Markisoleringsskiva av extruderad cellplast XPS, 50 |
| 12 | Kapillärbrytande lager av tvättad makadam 440, 16/32 |
| 13 | Kapillärbrytande lager av tvättad makadam 390, 16/32 |
| 14 | Fiberduk kl 2 |
| 15 | Dränerande återfyllning av finkornig jord, 175–225 |
| 16 | Fotplåt 150/50, HB-polyester |
| Grund påbyggnad | |
| 17 | Syllisolering, bredd = 150, kvalitet YEP 2500 |
| 18 | Syll av impregnerat konstruktionsvirke 45 × 145, hållfasthetsklass C24, träskyddsklass NTR A |
| 19 | Syll av impregnerat konstruktionsvirke 45 × 95, hållfasthetsklass C24, träskyddsklass NTR AB |
| 20 | Fasadplugg ∅ 10 × 135, korrosivitetsklass C4, centrumavstånd 1 200 |
| 21 | Underslag av impregnerat konstruktionsvirke 45 × 145, hållfasthetsklass C24, träskyddsklass NTR A |
| 22 | Golv av impregnerad trall 34 × 145, sort G4-2, träskyddsklass NTR AB |
| 23 | Golvregel av impregnerat konstruktionsvirke 45 × 95, hållfasthetsklass C24, träskyddsklass NTR AB |
| 24 | Kantbräda av impregnerad trall, 34 × 145, sort G4-2, träskyddsklass NTR AB |
| Stomme | |
| 25 | Impregnerad limträpelare 115 × 115, hållfasthetsklass GL24h, träskyddsklass NTR BGL |
| 26 | Väggregel av impregnerat konstruktionsvirke 45 × 95, hållfasthetsklass C24, träskyddsklass NTR AB |
| 27 | Hammarband av impregnerad limträpelare 115 × 115, hållfasthetsklass GL24h, träskyddsklass NTR BGL |
| 28 | Nockbalk av impregnerad limträbalk 115 × 315, hållfasthetsklass GL30c, träskyddsklass NTR BGL |
| 29 | Takbjälke av impregnerad limträpelare 115 × 115, hållfasthetsklass GL24h, träskyddsklass NTR BGL |
| 30 | Avväxling av impregnerad limträbalk 90 × 225, hållfasthetsklass GL30c, träskyddsklass NTR BGL |
| 31 | Impregnerad limträpelare 90 × 90, hållfasthetsklass GL24h, träskyddsklass NTR BGL |
| 32 | Provisoriska stödbrädor 22 × 120, gran, sort G4-3 |
| 33 | Spikregel av impregnerat konstruktionsvirke 45 × 95, hållfasthetsklass C24, träskyddsklass NTR AB |
| 34 | Väggregel av impregnerat konstruktionsvirke 45 × 70, hållfasthetsklass C24, träskyddsklass NTR AB |
| 35 | Regel av impregnerat konstruktionsvirke 45 × 70, hållfasthetsklass C24, träskyddsklass NTR AB |
| 36 | Kortling av impregnerad ytterpanelbräda 22 × 145, sort G4-2, träskyddsklass NTR AB |
| 37 | Kortling av impregnerad trall 34 × 95, sort G4-2, träskyddsklass NTR AB |
| 38 | Mallbräda av provisorisk bräda 22 × 120, gran, sort G4-2, L = 440, för inpassning av väggreglar i växthusdelen |
| 39 | Universalskruv ∅ 6,5 × 130, korrosivitetsklass C4 |
| 40 | Universalskruv ∅ 8 × 160, korrosivitetsklass C4 |
| Takbjälkar och takreglar | |
| 41 | Takregel av impregnerat konstruktionsvirke 45 × 120, hållfasthetsklass C24, träskyddsklass NTR AB |
| 42 | Takregel av impregnerat konstruktionsvirke 45 × 95, hållfasthetsklass C24, träskyddsklass NTR AB |
| 43 | Mallbräda 22 × 95 av ytterpanelbräda 22 × 120, sort G4-2, L = 1 845, för takreglar 45 × 95 i växthusdel |
| 44 | Mallbräda 22 × 115 av ytterpanelbräda 22 × 120, sort G4-2, L = 1 845, för takbjälkar 115 × 115 |
| 45 | Mallbräda 22 × 120 av ytterpanelbräda 22 × 120, sort G4-2, L = 1 845, för takreglar 45 × 120 i förrådsdel |
| 46 | Tillfällig monteringsläkt av staketläkt 28 × 45 för nockbalken av limträ inför montage av takbjälkar och takreglar |
| 47 | Tillfällig monteringsregel av regel 45 × 95 för nockbalken av limträ inför montage av takbjälkar av limträpelare |
| 48 | Tillfällig monteringsregel av regel 45 × 120 för nockbalken av limträ inför montage av takreglar 45 × 95, hållfasthetsklass C24 |
| 49 | Tillfällig monteringsregel av regel 45 × 95 för nockbalken av limträ inför montage av takreglar 45 × 120, hållfasthetsklass C24 |
| Tak | |
| 50 | Underlagsspont 23 × 120, gran, sort G4-3 |
| 51 | Ströläkt av impregnerad staketläkt 28 × 45, sort G4-2, träskyddsklass NTR AB |
| 52 | Bärläkt av impregnerad staketläkt 28 × 70, sort G4-2, träskyddsklass NTR AB |
| 53 | Faltak av impregnerad ytterpanelbräda 22 × 145, sort G4-2, träskyddsklass NTR AB |
| 54 | Nockbräda av impregnerad ytterpanelbräda 22 × 145, sort G4-2, träskyddsklass NTR AB |
| 55 | Impregnerad ytterpanelbräda 22 × 95, träskyddsklass NTR AB |
| 56 | Läkt 12 × 48, gran, sort G4-2 |
| 57 | Distansläkt 12 × 22, klyvd ur läkt 12 × 48, gran, sort G4-2 |
| 58 | Spontad ytterpanel 22 × 145, gran, sort G4-2 |
| 59 | Trekantsläkt 50 × 50, gran, sort G4-2 |
| 60 | Kilbräda ur impregnerad regel 45 × 95, sort G4-2, träskyddsklass NTR AB |
| 61 | Täckbräda av impregnerad staketläkt 28 × 45, sort G4-2, träskyddsklass NTR AB |
| 62 | Underlagspapp, kvalitet YEP 2500 med klisterkant |
| 63 | Träfiberisolering 120 |
| 64 | Åldersbeständig plastfolie 0,20 |
| 65 | Helklistrat fuktskyddsmembran, bredd = 200 |
| 66 | Kronlist 4 × 9, EPDM, cellgummi, svart |
| 67 | Plåtavtäckning förrådsdel, HB-polyester, L = 1 604 |
| 68 | Plåtbeslag, HB-polyester, L = 1970, klipps i ovankant |
| 69 | Fotplåt, HB-polyester, L = 1 640 |
| 70 | Säkerhetsglas 4 |
| 180 | Impregnerad ytterpanelbräda 22 × 70, sort G4-2, träskyddsklass NTR AB |
| 183 | Helklistrat fuktskyddsmembran, bredd = 600 |
| 187 | Fotplåtsremsa, bredd = 330, kvalitet YEP 2500 |
| Vägg förrådsdel | |
| 71 | Liggande limträpanel 25 × 225, gran, sort G4-1 |
| 72 | Impregnerad staketläkt 28 × 45, sort G4-2, träskyddsklass NTR AB |
| 73 | Stödbräda av impregnerad ytterpanelbräda 22 × 145, sort G4-2, träskyddsklass NTR AB |
| 74 | Remsor bredd = 70 av hård träfiberskiva 8 |
| 75 | Impregnerad trall 34 × 120, sort G4-2, träskyddsklass NTR AB |
| 76 | Karm av impregnerad trall 34 × 145, sort G4-2, träskyddsklass NTR AB |
| 77 | Spikregel av impregnerat konstruktionsvirke 45 × 70, hållfasthetsklass C24, träskyddsklass NTR AB |
| 78 | Vindduk, klass W1 |
| 79 | Träfiberisolering 70 |
| 80 | Vindskyddspapp, kvalitet AC 350 |
| 81 | Träfiberisolering 95 |
| 82 | Förbockad plåt, HB-polyester |
| 83 | Förbockad plåt 100/50, HB-polyester, L = 441 |
| 84 | Akrylbaserat, silikonfritt fönsterkitt, svart |
| Förrådsdörr och fönsterdörr | |
| 85 | Täckbräda av dimensionshyvlad 20 × 95, gran, sort G4-2 |
| 86 | Ram av dimensionshyvlad 34 × 45, gran, sort G4-2 |
| 87 | Ram av dimensionshyvlad 34 × 70, gran, sort G4-2 |
| 88 | Fotbräda av dimensionshyvlad 34 × 95, gran, sort G4-2 |
| 89 | Spröjs av dimensionshyvlad 34 × 45, gran, sort G4-2 |
| 90 | Spröjs av dimensionshyvlad 25 × 23, gran, sort G4-2 |
| 91 | Lyftgångjärn tappbärande, höjdjusterbart, 110 × 98, höger/vänster, två per sida |
| 92 | Läkt 25 × 23, gran, sort G4-2 |
| 93 | Impregnerad ytterpanelbräda 22 × 145, sort G4-2, träskyddsklass NTR AB |
| 94 | Impregnerad trall 28 × 145, G4-2, träskyddsklass NTR AB |
| 95 | Foderbräda av impregnerad ytterpanelbräda 22 × 120, sort G4-2, träskyddsklass NTR AB |
| 96 | Karmstycke av impregnerad trall 34 × 95, sort G4-2, träskyddsklass NTR AB |
| 97 | Vindskiva av impregnerad ytterpanelbräda 22 × 145, sort G4-2, träskyddsklass NTR AB |
| 98 | Impregnerad rillad trall 28 × 145, sort G4-2, träskyddsklass NTR AB |
| 179 | Fotplåt, HB-polyester, L = 1 195 |
| 184 | Draghandtag |
| 185 | Rullås |
| 186 | Kantregel |
| Ventilation och vädring | |
| 99 | Impregnerad staketläkt 34 × 45, sort G4-2, träskyddsklass NTR AB |
| 100 | Impregnerad regel 45 × 45, sort G4-2, träskyddsklass NTR AB |
| 101 | Karm 28 × 34 ur impregnerad staketläkt 28 × 45, sort G4-2, träskyddsklass NTR AB |
| 102 | Karm av impregnerad staketläkt 28 × 45, sort G4-2, träskyddsklass NTR AB |
| 103 | Båge av impregnerad staketläkt 34 × 45, sort G4-2, träskyddsklass NTR AB |
| 104 | Karmläkt av impregnerad staketläkt 34 × 45, sort G4-2, träskyddsklass NTR AB |
| 105 | Båge av impregnerad regel 45 × 45, sort G4-2, träskyddsklass NTR AB |
| 106 | Spikläkt av impregnerad staketläkt 28 × 45, sort G4-2, L = 650,träskyddsklass NTR AB |
| 107 | Kortling av impregnerad staketläkt 34 × 45, sort G4-2, L = 385,träskyddsklass NTR AB |
| 108 | Snedsågad kortling av impregnerat konstruktionsvirke 45 × 95, L = 464, hållfasthetsklass C24, träskyddsklass NTR AB |
| 109 | Förbockad plåt 50/50, HB-polyester, L = 441 |
| 110 | Plåt 100, HB-polyester, L = 361 |
| 111 | Sidoplåt 125, HB-polyester, L = 551 |
| 112 | Plåtavtäckning växthusdel, överbeslag, HB-polyester, L = 3 135, klipps vid takfönster |
| 113 | Kantgångjärn 89 × 58 rostfritt, 2 stycken per lucka |
| 114 | Fönsterlås |
| 115 | Automatiskt öppningsbeslag |
| 116 | Stormhasp 300, varmförzinkad |
| 117 | Ventilationsgaller av gjuten aluminium, runt med nät, stos ∅ 125 |
| 118 | Underbleck 80, HB-polyester, L = 650 |
| 119 | Underbleck 40, HB-polyester, L = 650 |
| 120 | Överbleck 80, HB-polyester, L = 650 |
| Glastak och glasvägg | |
| 121 | Plåtavtäckning växthusdel, underbeslag, HB-polyester, L = 3 135, klipps vid takfönster |
| 122 | Planglas 6 |
| 123 | Panelskruv ∅ 4,8 × 70, rostfri A4 |
| 124 | Stifttråd (glasmästartråd) av koppar ∅ 1,2, centrumavstånd 150 |
| 125 | Hård träfiberskiva 4, oljehärdad, en mallskiva per glasruta, samt skivor för skyddstäckning av golv |
| Foder, täcklister, täckbrädor och vindskivor | |
| 126 | Knutbräda av impregnerad ytterpanelbräda 22 × 145, L = 1 610,sort G4-2, träskyddsklass NTR AB |
| 127 | Vattbräda av impregnerad ytterpanelbräda 22 × 170, sort G4-2, träskyddsklass NTR AB |
| 128 | Täckbräda av impregnerad ytterpanelbräda 22 × 120, L = 1 920, sort G4-2, träskyddsklass NTR AB |
| 129 | Knutbräda av impregnerad ytterpanelbräda 22 × 170, sort G4-2, träskyddsklass NTR A |
| 130 | Foderbräda av impregnerad ytterpanelbräda 22 × 145, sort G4-2, träskyddsklass NTR AB |
| 131 | Läkt 23 × 23, klyvd ur impregnerad ytterpanelbräda 22 × 145, sort G4-2, träskyddsklass NTR AB |
| 132 | Läkt 18 × 23, klyvd ur impregnerad ytterpanelbräda 22 × 145, sort G4-2, träskyddsklass NTR AB |
| 133 | Vindskiva av impregnerad ytterpanelbräda 22 × 145, sort G4-2, träskyddsklass NTR AB |
| 181 | Vindskiva av impregnerad ytterpanelbräda 22 × 170, sort G4-2, träskyddsklass NTR AB |
| Markbädd, planteringslåda, arbetsbänk | |
| 134 | Regel av impregnerat konstruktionsvirke 45 × 95, hållfasthetsklass C24, träskyddsklass NTR AB |
| 135 | Sittbräda av impregnerat konstruktionsvirke 45 × 220, hållfasthetsklass C24, träskyddsklass NTR A |
| 136 | Spikregel av impregnerat konstruktionsvirke 45 × 70, hållfasthetsklass C24, träskyddsklass NTR AB |
| 137 | Sarg och botten av impregnerat konstruktionsvirke 45 × 145, hållfasthetsklass C24, träskyddsklass NTR A |
| 138 | Sarg av impregnerat konstruktionsvirke 45 × 70, hållfasthetsklass C24, träskyddsklass NTR AB |
| 139 | Bänkskivor av slätspont 27 × 120, gran, sort G4-2 |
| 140 | Läkt 25 × 48, gran, sort G4-2 |
| 141 | Regel dimensionshyvlad 45 × 45, gran, sort G4-2 |
| 142 | Planteringsjord 550−600 |
| 143 | Cementbunden spånskiva 12 |
| 144 | Värmekabel |
| 145 | Fuktisoleringsmatta |
| 146 | Lättklinkerblock 70 × 190 × 590 |
| 147 | Dräningslager av tvättad makadam 200, 16/32 |
| 148 | Dräningslager av tvättad makadam 100, 16/32 |
| 182 | Syllisolering, bredd = 200, kvalitet YEP 2500 |
| Fästdon, spik och skruv | |
| 20 | Fasadplugg ∅ 10 × 135, korrosivitetsklass C4, centrumavstånd 1 200 |
| 39 | Universalskruv ∅ 6,5 × 130, korrosivitetsklass C4 |
| 40 | Universalskruv ∅ 8 × 160, korrosivitetsklass C4 |
| 123 | Panelskruv ∅ 4,8 × 70, rostfri A4, med försänkt huvud |
| 149 | Trådspik 4,0 × 125, rostfri |
| 150 | Trådspik 2,3 × 60, rostfri |
| 151 | Trådspik 2,3 × 60, varmförzinkad |
| 152 | Trådspik 1,7 × 40, varmförzinkad |
| 153 | Trådspik 2,8 × 75, rostfri A4 |
| 154 | Trådspik 2,8 × 75 varmförzinkad |
| 155 | Panelspik 2,8 × 48, rostfri A4 |
| 156 | Panelspik 2,8 × 70, rostfri A4 |
| 157 | Panelspik 2,8 × 55, varmförzinkad |
| 158 | Panelspik 2,8 × 55, rostfri A4 |
| 159 | Kamspik 2,8 × 75, rostfri A4 |
| 160 | Pappspik 2,8 × 20, varmförzinkad |
| 161 | Räfflad dyckert 1,7 × 35 varmförzinkad |
| 162 | Dyckert 2,3 × 60, varmförzinkad |
| 163 | Häftklammer 16, rostfri |
| 164 | Träskruv ∅ 4,0 × 40, ytbehandling zink/nickel i korrosivitetsklass C4, med försänkt huvud |
| 165 | Träskruv ∅ 4,0 × 50, ytbehandling zink/nickeli korrosivitetsklass C4 |
| 166 | Träskruv ∅ 5,0 × 80, ytbehandling zink/nickeli korrosivitetsklass C4 |
| 167 | Träskruv ∅ 6,0 × 100, rostfri A4 |
| 168 | Träskruv ∅ 6,5 × 40, med försänkt huvud |
| 169 | Panelskruv ∅ 4,8 × 48, rostfri A4 |
| 170 | Panelskruv ∅ 4,8 × 55, varmförzinkad |
| 171 | Fasadplugg ∅ 10 × 100, korrosivitetsklass C4, centrumavstånd 1 200 |
| 172 | Panelskruv ∅ 4,8 × 48, rostfri A4 |
| 173 | Panelskruv ∅ 4,8 × 75, rostfri A4 |
| 174 | Trallskruv ∅ 4,8 × 75, rostfri A4 |
| 175 | Ankarskruv ∅ 4 × 40, varmförzinkad |
| 176 | Vinkelbeslag 90 × 90 × 65, varmförzinkat |
| 177 | Universalskruv ∅ 6,5 × 65, korrosivitetsklass C4 |
| 178 | Väderbeständigt trälim för utomhusbruk |
| Detalj | Beskrivning |
| A | Profilställning |
| B | Sektion genom grund i förrådsdel, långsida |
| C | Sektion genom grund i förrådsdel, gavel |
| D | Syllisolering under syll |
| E | Infästning av trall |
| F | Observera Skruvhuvuden och spikskallar ska vara i jämn nivå med trallens yta, inte djupare. |
| G | Stumskarv av trall över golvregel och spikreglar |
| H | Montering av trall mot golvbjälkar |
| I | Montera trallbrädan med den bästa sidan vänd uppåt |
| J | Infästning av impregnerad limträpelare mot hammarband |
| K | Infästning av takbjälkar av limträpelare |
| L | Infästning av takreglar i förrådsdel |
| M | Infästning av takreglar i växthusdel |
| N | Infästning av impregnerad limträpelare mellan nockbalk och tvärbalk i gavel växthusdel |
| O | Infästning av överram av impregnerad limträpelare mot limträpelare i gavel växthusdel |
| P | Infästning av impregnerad limträpelare mellan nockbalk och tvärbalk i mellanvägg |
| Q | Infästning av överram av impregnerad limträpelare mot konstruktionsvirke i mellanvägg |
| R | Infästning av impregnerad limträbalk mot hammarband i växthusdel |
| S | Infästning av takregel av impregnerat konstruktionsvirke mot hammarband i förrådsdel |
| T | Infästning av takregel av impregnerat konstruktionsvirke mot hammarband i växthusdel |
| U | Infästning av impregnerad limträbalk mot hammarband samt spikreglar för innertakspanel i förrådsdel |
| V | Väggregel, distansläkt och täckbräda i glasvägg |
| W | Övergång mellan förrådsdelens tak och inglasat tak, tvärs takfallet |
| X | Nockparti förrådsdel |
| Y | Mallbräda mellan väggreglar och takreglar i växthusdel |
| Z | Foder på limträpelare i växthusdel |
| Å | Foder på väggreglar i växthusdel |
| Ä | Förrådsdelens anslutning mot bottenkarm |
| Ö | Förrådsdelens fönsteranslutning mot sidokarm |
Komplett materialspecifikation finns på www.byggbeskrivningar.se
Du vet väl att du kan spara sidor till senare. Samla här pins för de sidor du besöker ofta och enkelt vill kunna återkomma till.